у менеджера
Посетите наш Промышленные твердотопливные парогенераторы предназначены для выработки пара давлением от 0,07 до 0,8 МПа (до 8,0 кгс/см2) и температурой 115- 170 °С. Котельный завод осуществляет производство парогенераторов и поставляет все сопутствующее оборудование - насосы, автоматику, водоподготовку и прочее.
| Тип | Котел КП (Е) |
| Марка | Паровой котел Е 1,0-0,9 Р |
| Температура уходящих газов, °C | 180 |
| КПД, не менее, % | 81 |
| Тепловая мощность, кВт | 740 |
| Производительность, кг/ч | 1000 |
| Температура пара, не более, °C | 170 |
| Давление рабочей среды, МПа (кгс/cм²) | 0.8 (8.0) |
| Вид топлива | Уголь |
| Низшая теплота сгорания топлива, кКал/кг | 5230 |
| Тяга | Естественная |
| Диапазон регулирования теплопроизводительности, % | 40-100 |
| Масса, не более, т | 5100 |
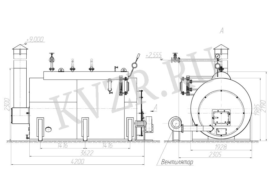
| Габаритные размеры, длина*ширина*высота, мм | 4250*2390*2600 |
Котельный завод производит парогенераторы 1000 кг в час на твердом топливе с различными параметрами пара.
Парогенератор на угле выработывающий пар высокого давления 0,3 - 0,8 МПа (до 8,0 кгс/см2) и температурой 120 - 170 °С. Марка - Е 1.0-0,9 Р.
Парогенератор на угле вырабатывающий насыщенный пар 0.07 МПа (до 0.7 кгс/см2) и темпрературой до 115 ºС. Марка - КПр 1000.
Твердое топливо уголь или дрова через фронтальную дверку вручную подается в топочную камеру парогенератора, также в топку для обеспечения горения вентилятором подается воздух, образующиеся зола и шлак проваливаются в зольную камеру, где сгорает. Горячие газы, образующиеся в процессе горения нагревают воду в водяной рубашке топочной камеры, проходят через трубный пучок парогенератора и выходят в его верхней части.
Трубный пучок соединяет верхнюю и нижнюю часть водяной рубашки парогенератора, пар высокого давления образуется при испарении нагреваемой воды и собирается в верхней части парогенератора, в паросборной камере, далее пар через паропровод направляется на технологические нужды.
Автоматика парогенератора обеспечивает безопасную работу.
Парогенератор 1000 кг в час на твердом топливе поставляется полным комплектом:
Дымосос для работы котла не требуется.
Насос поставляется дополнительно.

Твердотопливный парогенератор 1000 кг в час поставляется блоком максимальной заводской готовности. Парогенератор устанавливается на специально подготовленную ровную поверхность и закрепляется анкерными болтами.
Подсоединяется по воде, устанавливается запорная арматура на подводящем трубопроводе и отводящем паропроводе, устанавливаются предохранительные клапаны и контрольно-измерительные приборы. Монтируется дымовая труба. Подключается автоматика парогенератора.
поставляется в следующие регионы и города России и Казахстана.
Показать города доставки
Вы можете получить скидку на товар, чтобы узнать подробно, оставьте ваш номер телефона, и наш менеджер свяжется с вами в ближайшее время.